location/místo – Prague     year/rok – 2022     size/velikost – 45 m²    realization/realizace – Profil nábytek   photo/foto – Nikola Tláskalová
 
      
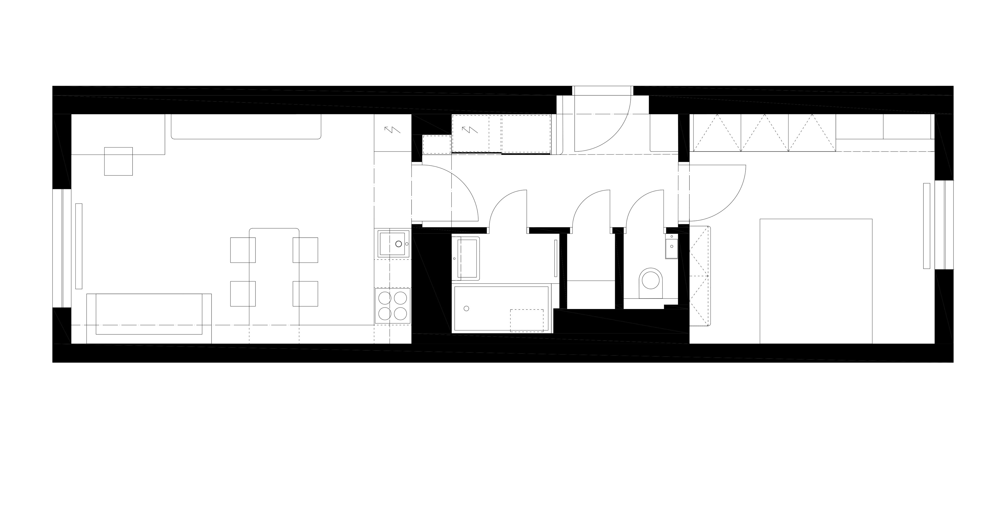
    Parketové podlahy byly repasovány, v chodbě, koupelně a na záchodě byla položena nová velkoformátová dlažba s jemnou strukturou. Původní vstupní dveře a dveře do jednotlivých místností se nedochovaly. Osvícenému majiteli bytu se ovšem podařilo po bazarech sehnat takové, které přibližně odpovídají těm původním i s originálním kováním. Stavební změny byly minimální, došlo pouze k dispozičním úpravám jednotlivých funkčních zón bytu. Tmavá a prostorově nedostačující kuchyň byla přemístěna ze vstupní chodby do obývacího pokoje. Uspořádání koupelny bylo přizpůsobeno požadavkům majitele, trochu netradiční jsou výšky osazení umyvadel a zrcadel – s ohledem na výšku majitele bytu. Ze stejného důvodu je i úložný prostor využíván až po strop. 
 
      
      
     
      
    Nový nábytek je velmi racionálně navržen. Poskytuje dostatek uzavřeného úložného prostoru a materiálově je v celém bytě navržen tak, aby byt působil kompaktně a světle a místnosti tak vizuálně propojoval. Kombinujeme dřevo, světle šedé plochy, a výraznou petrolejovou barvu doplněnou kontrastní tmavě červenou barvou polic. Výrazný motiv vytváří rastr obkladů či černé kovové tyče v kuchyni, koupelně i ložnici. Součástí kuchyňské linky je vysoký barový stůl, který plní i funkci stolu jídelního. Roksorové barové židle jsou doplněny zvýšenými židlemi Trivi.
 
      
     
      
     
      
     
      
     
      
     
      
     
      
     
      
     
      
     
      
     
      
     
      
     
      
     
      
     
      
     
      
    